物件詳細情報
度会郡大紀町大内山-有機野菜の生産ライセンス付きの土地建物-Code:ko-7540
| 所在地 | 度会郡大紀町大内山 |
|---|---|
| 交通 | JR「梅ヶ谷」駅約4.0㎞ |
| 土地面積 | 12,095.20㎡(3,658.79坪) |
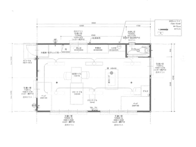
| 建物面積 | 193.08㎡(58.40坪) |
| 価格 | 2,500万円 |
| 種別 | 売物件 | 最寄駅/施設 | JR「梅ヶ谷」駅約4.0㎞ | 種類 | 居宅 その他(車庫) | 構造 | 軽量鉄骨造平屋建 | 間取り | 3LDK+書斎 | 築年月 | 平成12年1月 | 床面積 | 居宅1面積128.64㎡(38.91坪) 車庫面積25.16㎡(7.61坪) 居宅2面積39.28㎡(11.88坪) | 都市計画 | 区域外 | 現況 | 利用中 | 用途地域 | 無指定 | 地目 | 宅地 | 地勢 | 平坦 | 道路位置 | 宅地から北東側道路 | 敷地権利 | 所有権 | 私道負担 | 無 |
|---|
| 環境 | 静か 高台 | 小学校 | 大紀小学校 | 中学校 | 大紀中学校 | 水道 | 公営水道 井戸 | ガス | プロパン | 電気 | 中部電力 | トイレ | 合併浄化槽 | 排水 | 浄化槽 | 引き渡し日 | 相談 | 引き渡し条件 | 現況 | 特記事項 | 2026.04.10以降見学可能 | 備考1 | 特定盛土等規制区域 | 備考2 | 標高:約230m(国土地理院参照) | 備考3 | 居宅1:石油給湯器あり | 備考4 | 居宅2:未登記 固定資産税:74,400円 | 取引態様 | 仲介 | 最終更新日 | 2026/3/12 | 物件番号 | ko-7540 |
|---|












