物件詳細情報
鳥羽市-角部屋で明るく、太平洋が望めます。-Code:mn-2578
| 所在地 | 鳥羽市安楽島町字腰掛 |
|---|---|
| 交通 | 近鉄「鳥羽」駅約5.3Km |
| 専有面積 | 78.73㎡(23.81坪) |
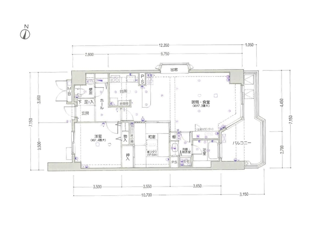
| 間取り | 2LDK |
| マンション名 | フジタ第六鳥羽マンション |
| 価格 | 800万円 |
| 種別 | 売マンション | 最寄駅/施設 | 鳥羽市かもめバス「ウィスタリアン前」停約350m | 種類 | 居宅 | 構造 | 鉄骨鉄筋コンクリート造瓦葺17階建て9階部分 | 間取り | 2LDK | 築年月 | 平成4年11月新築 | 専有面積(内法) | 78.73㎡(23.81坪) | 都市計画 | 区域内 | 総戸数 | 132戸 | 管理費 | 11,520円/月 | 用途地域 | 無指定 | 現況 | 利用中 | 修繕積立金 | 9,640円/月 | 道路位置 | 東側公道 | 敷地権利 | 所有権 | 私道負担 | 無 |
|---|
| 環境 | 静か | 小学校 | 安楽島小学校 | 中学校 | 鳥羽東中学校 | 水道 | 公営水道 | ガス | 集中プロパン | 電気 | 中部電力 | トイレ | 集中浄化槽 | 排水 | 集中浄化槽 | 引き渡し日 | 相談 | 引き渡し条件 | 相談 | 特記事項 | 自然公園法(普通地域)、鳥羽市都市計画(風致地区内) | 備考1 | 水道基本料金 3,559円/月(超過水量は別途請求) | 取引態様 | 仲介 | 最終更新日 | 2025/9/21 | 物件番号 | mn-2578 |
|---|










