物件詳細情報
志摩市-海が近く、釣りも楽しめる1LDK-Code:mn-2584
| 所在地 | 志摩市大王町船越 |
|---|---|
| 交通 | 三交バス 「深谷水道」停 徒歩1分 |
| 専有面積 | 51.44㎡(15.56坪) |
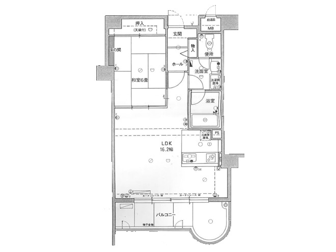
| 間取り | 1LDK |
| マンション名 | 志摩アーバンリゾート |
| 価格 | 180万円 |
| 種別 | 売マンション | 最寄駅/施設 | 近鉄「鵜方」駅 約12km | 種類 | 居宅 | 構造 | 鉄筋コンクリート造陸屋根11階建 | 間取り | 1LDK | 築年月 | 平成1年5月 | 専有面積(内法) | 51.44㎡(15.56坪) | バルコニー面積 | 9.38㎡(2.83坪) | 都市計画 | 区域内 | 総戸数 | 101戸 | 管理費 | 13,420円/月 | 用途地域 | 無指定 | 施工会社 | 株式会社 石吉組 | 現況 | 利用中 | 修繕積立金 | 5,150円/月 | 道路位置 | 北側公道 | 敷地権利 | 敷地権 | 私道負担 | 無 |
|---|
| 環境 | 静か | 小学校 | 大王小学校 | 中学校 | 大王中学校 | 水道 | 公営水道 | ガス | 集中ガス | 電気 | 中部電力 | トイレ | 集中浄化槽 | 排水 | 集中浄化槽 | 引き渡し日 | 相談 | 引き渡し条件 | 相談 | 特記事項 | 水道基本料1,575円/月 | 備考1 | 管理会社 アーバンサービス株式会社 | 備考2 | エレベーター有 | 取引態様 | 仲介 | 最終更新日 | 2025/11/26 | 物件番号 | mn-2584 |
|---|




